|







We're members of


|
225 Land Management
17470
Pleasant Hill Drive
Livingston,
LA 70754
Enjoy your own private lot conveniently located between Port
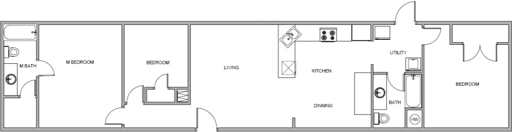
Vincent and French Settlement. This is a very spacious, non-smoking, 16x74, 3 bedroom, 2 bath home that has been remodeled with new paint
and flooring. This unit includes ½ acre of land and a very nice
semi-shaded yard. This home includes a stove, dishwasher, refrigerator,
ceiling fans throughout, a garden tub in master bath, and walk-in closet.
Water, sewer, as well as garbage collection is included in the rent.
This home rents for $850 a month

Requires a $825 security depositRequires
an additional $150 electricity deposit
Absolutely No Indoor Smoking or Vaping Allowed!
Absolutely No Pets Allowed!
Currently Occupied
|
|